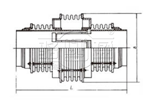
BZYP型直管壓力平衡波紋補償器,它的結構是由工作波紋管、平衡波紋管、接管、端板及平衡拉桿組成,管道在使用過程中會產生比較大的內壓推力,一般不直接與設備相連接需要通過一定的泄壓手段才能相連。BZYP型直管壓力平衡波紋補償器的補償系統中的軸向位移,內壓推力自身平衡。
【產品名稱】:BZYP型直管壓力平衡補償器
【產品別名】:直管平衡補償器、壓力平衡補償器、平衡補償器
【產品規格】:【DN300mm-DN2000mm】
【產品壓力】:0.25-0.6MPa
【產品】:
【適用范圍】:【弱酸、弱堿、弱腐蝕類、油、熱水、冷水等】
【產品材質】:碳鋼,球墨鑄鐵,不銹鋼.
【產品顏色】:藍色,可根據客戶要求調色.
【工作溫度】:-40度至80度
在線咨詢
購買熱線: 021-622-00727
直管壓力平衡波紋補償器能通過自身結構使內壓產生的推力保持平衡,而不作用或很少作用于相連設備,且能保持本身的位移補償功能。 在組合電器中經常使用直管壓力平衡波紋補償器,它不僅能補償設備連接中的軸向、徑向位移還能平衡由波紋補償器內壓產生的推力,減少對連接設備或管道的影響。直管壓力平衡波紋補償器平衡內壓產生推力的關鍵是平衡波紋管的有效面積必須是工作波紋管有效面積的兩倍,這樣工作波紋管內壓引起的向外側的軸向推力通過平衡拉桿被平衡波紋管因內壓引起的相反方向的推力所抵消,而無軸向推力輸出,管道或設備不再受力。 BZYP型直管壓力平衡波紋補償器的兩端各有一個工作波紋管,中間有一個平衡波紋管,膨脹節通過受力構件(大拉桿或舌管)來承受內壓推力,因此管系只需中間固定支架。此類膨脹節只能吸收軸向位移。
直管壓力平衡補償器產品介紹
直管壓力平衡補償器主要用于吸收軸向與橫向組合位移并能平衡波紋管的壓力推力。該膨脹節為波紋管式結構,內由壓力平衡波紋管和補償波紋管組成,通過壓力平衡波紋管平衡波紋補償器壓力,解除補償器以及管道的自身推力。疲勞壽命[N]=1000次
連接方式:1、法蘭連接式 2、接管連接式
直管壓力平衡補償器產品特點
該膨脹節的兩端各有一個工作波紋管,中間有一個平衡波紋管,膨脹節通過受力構件(大拉桿或舌管)來承受內壓推力,因此管系只需中間固定支架。此類膨脹節只能吸收軸向位移。
直管壓力平衡補償器用途
其從根本上解決了盲板力對固定支架的推力問題,從而簡化了固定支架的設計和施工,降低了工程造價。壓力平衡型膨脹節能補償管道系統中的軸向位移,內壓推力自身平衡,本產品應用于不宜設置固定支架的高物位置管線中。
近日,記者從金昌市水務局獲悉,金昌市謀劃申報近20年的水利重點項目韓家峽水庫工程前期工作獲得重大進展,日前已由金昌市發改委核準立項,并列入~第三批專項基金扶持貸款項目,將進入建設階段。
金昌市是一個典型的資源型缺水城市,水資源總量不足,來水時空分布不均,干旱災害時有發生。歷屆市委、市始終把破解水資源短缺瓶頸作為重中之重,于上世紀末就提出了新建水庫、增加調蓄能力的構想。2001年,金昌市遭受50年罕見的旱災,面對嚴峻旱情,市委、市啟動水庫建設論證工作,委托省水電勘測設計院先后在金昌市東大河、西大河、金川河開展選址工作,很終將壩址選定在金川河韓家峽,并報省上有關部門爭取立項。經市委、市主要優異和市上有關部門多次向省上匯報,韓家峽水庫項目引起了省上優異和有關部門的高度重視,該項目先后被列入《甘肅省水資源綜合規劃》《甘肅省十二五大型水庫建設規劃和中型水庫建設規劃》和《甘肅省小型水庫建設規劃》。省將小型水庫核準建設權下放市后,市水務部門全力跟進,集中力量開展工作。同年9月項目順利通過可研評審,之后由市發改委正式核準立項。
上海駱盈直管壓力平衡波紋補償器能通過自身結構使內壓產生的推力保持平衡,而不作用或很少作用于相連設備,且能保持本身的位移補償功能。 在組合電器中經常使用直管壓力平衡波紋補償器,它不僅能補償設備連接中的軸向、徑向位移還能平衡由波紋補償器內壓產生的推力,減少對連接設備或管道的影響。
據介紹,韓家峽水庫位于金川峽水庫下游4公里處,設計庫容990萬立方米,總投資4.2億元,已先期下達資金5000萬元。目前,金昌市水務局正按照水庫項目建設審批程序,抓緊委托有關技術單位編制水土保持、環境影響、地質災害等14個專項報告,計劃今年一季度開工建設。該水庫建成后,將極大改善金昌市現有水庫調蓄能力不足、豐枯不能相濟的現狀,有效提升市區和河西堡鎮工業和城市生活供水保障程度,緩解金昌市工農業生產用水矛盾。

請點擊圖片看大圖
請點擊圖片看大圖
|
公稱通徑 Nominal Diameter DNmm |
總波數 Sum of wave n |
n1/2n2n1大管波數 Number of wave (big pipe)n小管波數 Number of wave (small pipe)
|
壓力等級 Pressure grade Mpa |
徑向外型很大尺寸 Max radial size mm |
壓力對應的產品長度 Pressure and related length Lmm |
|||||
| 0.25 | 0.6 |
接管J型 Connection tube J |
法蘭F型 Flange F
|
|||||||
|
軸向補償量Axial compensation mm 軸向剛度Axial Stiffness N/mm |
0.25Mpa | 0.6Mpa | 0.25Mpa | 0.6Mpa | 0.25Mpa | 0.6Mpa | ||||
| 1100 | 12 | 4/8 | 102/1404 | 67/3880 | 2016 | 1986 | 2100 | 2440 | 2124 | 2464 |
| 18 | 6/12 | 154/936 | 100/2990 | 2450 | 2750 | 2474 | 2774 | |||
| 24 | 8/16 | 205/702 | 124/1940 | 2900 | 3110 | 2924 | 3134 | |||
| 1200 | 12 | 4/8 | 110/1246 | 60/5062 | 2170 | 2130 | 2100 | 2440 | 2124 | 2464 |
| 18 | 6/12 | 165/831 | 89/3375 | 2450 | 2750 | 2427 | 2774 | |||
| 24 | 8/16 | 220/623 | 120/2531 | 2900 | 3110 | 2924 | 3134 | |||
| 1300 | 12 | 4/8 | 116/1237 | 68/5475 | 2316 | 2266 | 2100 | 2450 | 2124 | 2474 |
| 18 | 6/12 | 174/827 | 102/3650 | 2450 | 2840 | 2474 | 2864 | |||
| 24 | 8/16 | 232/618 | 136/2736 | 2900 | 3230 | 2924 | 3254 | |||
| 1400 | 12 | 4/8 | 115/1295 | 68/5722 | 2430 | 2380 | 2100 | 2460 | 2124 | 2484 |
| 18 | 6/12 | 172/863 | 102/3815 | 2450 | 2850 | 2474 | 2874 | |||
| 24 | 8/16 | 230/647 | 136/2861 | 2900 | 3240 | 2924 | 3264 | |||
| 1500 | 12 | 4/8 | 105/1772 | 46/8595 | 2576 | 2530 | 2100 | 2460 | 2324 | 2484 |
| 18 | 6/12 | 158/1182 | 69/5730 | 2450 | 2850 | 2724 | 2874 | |||
| 24 | 8/16 | 211/886 | 92/4298 | 2900 | 3240 | 3264 | ||||
| 1600 | 12 | 4/8 | 103/1852 | 72/4878 | 2740 | 2688 | 2300 | 2660 | 2324 | 2684 |
| 18 | 6/12 | 154/1235 | 108/3252 | 2700 | 3060 | 2724 | 3084 | |||
| 24 | 8/16 | 44/2439 | 3450 | 3474 | ||||||
| 1700 | 12 | 4/8 | 111/1881 | 71/6363 | 2920 | 2686 | 2300 | 2660 | 2324 | 2684 |
| 18 | 6/12 | 166/1254 | 106/4242 | 2700 | 3060 | 2724 | 3084 | |||
| 24 | 8/16 | 142/3181 | 3450 | 3474 | ||||||
| 1800 | 12 | 4/8 | 104/2168 | 70/6150 | 3040 | 2968 | 2300 | 2660 | 2324 | 2684 |
| 18 | 6/12 | 156/1445 | 105/4100 | 2700 | 3060 | 2724 | 3084 | |||
| 24 | 8/16 | 140/3075 | 3450 | 3474 | ||||||
| 1900 | 12 | 4/8 | 108/2190 | 90/4605 | 3180 | 3128 | 2300 | 2660 | 2324 | 3684 |
| 18 | 6/12 | 160/1460 | 135/3070 | 2700 | 3060 | 2724 | 3084 | |||
| 24 | 8/16 | 180/2302 | 3450 | 3474 | ||||||
| 2000 | 12 | 4/8 | 121/2022 | 79/7088 | 3340 | 3288 | 2450 | 2660 | 2427 | 2684 |
| 18 | 6/12 | 182/1348 | 119/4725 | 2950 | 3060 | 2974 | 3084 | |||
| 24 | 8/16 | 158/3544 | 3450 | 3474 | ||||||
專業制造、專業服務,駱盈為你創造更多價值 !
不斷提升服務質量,精益求精,“真誠的服務”是駱盈永恒的主題。駱盈嚴格按照 要求,質量嚴格把關,責任到人,確保生產、銷售、服務的健康運行。加強與用戶溝通,竭誠為廣大客戶提供優質產品,至善至美服務,特此駱盈做出如下承諾:
產品標準
產品嚴格按照中國 GB、HG 標準和美國 API 等標準設計、制造、驗收。密封面硬度達到規定要求,寬度超過標準。
售前服務
產品介紹,技術交流,非標產品設計,疑難解答。
售中服務
1、守信合同,保證及時供貨,隨時保持與客戶聯系
2、對特殊或復雜的產品,我廠安排技術人員對用戶進行產品使用、故障排除、調式及維修進行培訓和指導。
售后服務
1、駱盈產品質保期為自出廠起 12 個月,實行“三包”服務(包退、包換、包修)。
2、產品在使用中我廠定期組織技術、檢查人員進行訪問,征詢用戶對產品質量、使用狀況、改進意見等方面的反饋,以便進一步提高產品質量。
3、對用戶投訴產品質量問題,快速做出反映,售后服務人員在 24-36 小時(省外 48 小時)趕赴現場。
4、對售后服務,要求用戶填寫服務后的質量反饋表,并做出鑒定意見,共同提高駱盈的產品質量與服務質量。
1、客戶采購清單請傳真至 021-64207088 E-mail:luoying@luoyingsh.com,或來電咨詢 021-62212627。
2、收到客戶采購清單,為客戶提供產品型號選型與報價(價格清單)。
3、具體商定:交貨期、特殊要求等事宜。
訂貨須知
1、客戶對產品有特殊要求,須在訂貨合同中提供以下說明:
(1)結構長度
(2)連接形式
(3)公稱直徑、全通徑、縮徑、管道尺寸
(4)用介質及溫度、壓力范圍
(5)實驗、檢驗標準及其他要求本廠可根據客戶特殊要求配置定做和設計特殊產品。
2、本廠可根據客戶特殊要求配置定做和設計特殊產品。
3、如由客戶提供確定的產品類型和型號時,客戶應正確說明其型號的含義和要求,在供需雙方理解一致的條件下簽訂合同。
您也可以聯系在線客服