XB矩形風道纖維織物補償器是由橡膠和纖維織物復合材料、鋼置法蘭、套筒、保溫隔熱材料組成,主要用于各種風機、風管之間的柔性連接,其功能是減振、降噪、密封、耐介質,便于位移和安裝。是環境保護領域中極為理想的減震、降噪、消除煙塵的管道件。
【產品名稱】:XB矩形風道纖維織物補償器
【產品別名】:矩形纖維織物補償器、纖維織物補償器、矩形纖維織物補償器
【產品規格】:【DN500mm-DN2000mm】
【產品】:
【適用范圍】:【排煙脫硫,除塵設備,空氣加熱,助流鼓風等設備】
【產品材質】:織物纖維
【產品顏色】:紅色,可根據客戶要求調色.
【工作環境】:高溫環境
在線咨詢
購買熱線: 021-622-00727
補償熱膨脹: XB矩形風道纖維織物補償器可以在較少的尺寸范圍內提供較大的多維方向補償。
補償安裝誤差:由于管道連接中,系統誤差在所難免,XB矩形風道纖維織物補償器能較好地消除安裝誤差。
消音隔振:纖維織物,保溫棉本身具有吸音、隔絕振動傳遞的功能,能有效地減少鍋爐、風機等系統的噪音和振動。
無反推力:由于主體材料為纖維織物,無力的傳遞,用非金屬膨脹節可簡化設計。
耐高溫耐腐蝕:使用的氟塑料,有機硅材料具有良好的耐高溫行耐腐蝕等性能。
密封性能好:在各種介質作用下,具有良好的密封性。價格低廉:進口同類產品的1/2~1/3。安裝維修方便。
矩形風道纖維織物補償器可補償軸向、橫向、角向,具有無推力、簡化支座設計、耐腐蝕、耐高溫、消聲減振等特點,特別適用于熱風管道及煙塵管道。
1、法蘭螺栓應逐步均勻地加壓擰緊,所有螺絲栓松緊度盡可能一致。使用條件惡劣的場合,除加平墊外可添加弱彈簧圈,以防螺母松動。
2、補償器與配套平焊法蘭之間應按工作溫度選用相應橡膠石棉墊片。
3、在試行時,應將補償器限位螺絲作適當調整,便于產品伸長或壓縮。
4、焊管連接時,應將限位螺絲適當松動,防止將補償器限位板拉彎或產品變形。
5、焊接作業時作蓋物遮住橡膠(織物)表面,防止焊渣損傷產品。
記者25日從中國長江三峽集團公司獲悉,三峽集團成功簽約總裝機容量45萬千瓦的幾內亞蘇阿皮蒂水電站項目。
據三峽集團介紹,蘇阿皮蒂水電站是幾內亞孔庫雷河梯級開發的第2級水電站,距離幾內亞首都科納克里約135公里。這個電站正常蓄水位210米,總裝機容量45萬千瓦。建成后,不僅能滿足幾內亞國內的電力需求,多余電能還將輸送至岡比亞、塞內加爾等周邊~。
1月20日,三峽集團與幾內亞~有關部門正式簽署了蘇阿皮蒂水電站項目總承包合同,合同金額13.8億美元,合同工期58個月。這也是繼凱樂塔水電站之后,三峽集團在幾內亞簽署的第二個大型水電站項目。
上海駱盈生產的XB矩形風道纖維織物補償器是由橡膠和纖維織物復合材料、鋼置法蘭、套筒、保溫隔熱材料組成,主要用于各種風機、風管之間的柔性連接,其功能是減振、降噪、密封、耐介質,便于位移和安裝。是環境保護領域中極為理想的減震、降噪、消除煙塵的管道件。

請點擊圖片看大圖
| 風道纖維織物補償器設計溫度下的材料等級 | ||||||
| 1 | T≤350℃ | A | Ⅰ | Q235A | Q235A | 隔熱保溫層填充硅酸鋁纖維棉,耐熱襯里采用迷宮式結構 |
| 2 | 350℃<T<650℃ | B | Ⅱ | Q235、16Mm | 16Mm | |
| 3 | 650℃<T<1200℃ | C | Ⅲ | 16Mm | 16Mn | |
| Ⅰ類圈帶為 | Ⅱ類圈帶為 | Ⅲ類圈帶為 | |
| ~層 | 面層硅橡膠玻璃纖維織物布 | 面層硅橡膠玻璃纖維織物布 | 面層硅橡膠玻璃纖維織物布 |
| 第二層 | 夾絲玻璃纖維布 | 工業用帆布 | 工業用帆布 |
| 第三層 | 石棉簾布 | 石棉簾布 | 硅酸鋁玻璃纖布 |
| 第四層 | 聚乙烯薄膜 | 玻璃纖維毯 | 石棉布 |
| 第五層 | 石棉毯 | 石棉布 | 鋯玻璃纖維毯 |
| 第六層 | 不銹鋼金屬絲網 | 絲玻璃纖維布 | 夾絲玻璃纖維布 |
| 第七層 | 不銹鋼金屬絲網 | 不銹鋼金屬絲網 | 不銹鋼金屬絲網 |
請點擊圖片看大圖
|
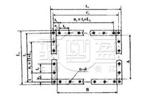
矩形產品規格 Specification of Rectangular |
管道外徑 External Diameter of Pipe |
A | B | 11 | K | C1 | C2 | t | t1 | t2 | t3 | 11 | k | n1 | n2 | c1/c2 | d |
螺栓孔數 No.of bolts n |
| 700×500 | 700×500 | 702 | 502 | 792 | 592 | 760 | 560 | 95 | 95 | 95 | 90 | 570 | 3 | 4 | 29/29 | 14 | 28 | |
| 700×700 | 700×700 | 702 | 792 | 760 | 95 | 570 | 6 | 32 | ||||||||||
| 700×800 | 700×800 | 802 | 814 | 914 | 774 | 874 | 112 | 110 | 109 | 110 | 550 | 654 | 5 | 6 | 36/36 | 18 | 30 | |
| 800×800 | 800×800 | 802 | 914 | 914 | 874 | 874 | 110 | 109 | 654 | 654 | 6 | 6 | 32 | |||||
| 800×1200 | 800×1200 | 1202 | 1314 | 1274 | 116 | 115 | 1044 | 9 | 38 | |||||||||
| 800×1600 | 800×1600 | 1602 | 1714 | 1674 | 119 | 123 | 1428 | 12 | 44 | |||||||||
| 900×400 | 900×400 | 902 | 402 | 992 | 492 | 960 | 60 | 96 | 96 | 92 | 92 | 768 | 276 | 8 | 3 | 29/29 | 14 | 30 |
| 900×700 | 900×700 | 702 | 814 | 974 | 774 | 124 | 121 | 110 | 112 | 726 | 550 | 6 | 5 | 36/36 | 18 | 30 | ||
| 900×1200 | 900×1200 | 1202 | 1314 | 1274 | 110 | 11 | 1044 | 9 | 38 | |||||||||
| 1000×600 | 1000×600 | 1002 | 602 | 1114 | 714 | 1074 | 674 | 117 | 120 | 112 | 113 | 840 | 448 | 7 | 4 | 30 | ||
| 1000×700 | 1000×700 | 702 | 814 | 774 | 110 | 112 | 550 | 5 | 32 | |||||||||
| 1000×800 | 1000×800 | 802 | 914 | 974 | 109 | 110 | 654 | 6 | 31 | |||||||||
| 1000×1000 | 1000×1000 | 1002 | 1114 | 1074 | 120 | 117 | 840 | 7 | 36 | |||||||||
| 1200×600 | 1200×600 | 1202 | 602 | 1314 | 714 | 1274 | 674 | 115 | 116 | 112 | 113 | 1041 | 448 | 9 | 4 | 34 | ||
| 1200×700 | 1200×700 | 702 | 814 | 774 | 110 | 112 | 550 | 5 | 36 | |||||||||
| 1200×800 | 1200×800 | 802 | 914 | 874 | 115 | 116 | 654 | 6 | 38 | |||||||||
| 1200×1000 | 1200×1000 | 1002 | 1114 | 1074 | 120 | 117 | 840 | 7 | 40 | |||||||||
| 1200×1200 | 1200×1200 | 1202 | 1314 | 1274 | 116 | 115 | 1044 | 9 | 41 | |||||||||
| 1400×700 | 1400×700 | 1402 | 702 | 1514 | 814 | 1474 | 774 | 110 | 114 | 110 | 112 | 1254 | 550 | 11 | 5 | 40 | ||
| 1400×800 | 1400×800 | 802 | 914 | 874 | 109 | 110 | 654 | 6 | 42 | |||||||||
| 1400×900 | 1400×900 | 902 | 1014 | 974 | 121 | 124 | 726 | 6 | ||||||||||
| 1400×1000 | 1400×1000 | 1002 | 1114 | 1074 | 120 | 117 | 840 | 7 | 44 | |||||||||
| 1400×1210 | 1400×1210 | 1202 | 1314 | 1274 | 116 | 115 | 1044 | 9 | 48 | |||||||||
| 1500×800 | 1500×800 | 1502 | 802 | 1614 | 914 | 1574 | 874 | 116 | 122 | 109 | 110 | 1342 | 654 | 6 | 42 | |||
| 1500×900 | 1500×900 | 902 | 1014 | 974 | 121 | 124 | 726 | |||||||||||
| 1500×1000 | 1500×1000 | 1002 | 114 | 1074 | 120 | 117 | 840 | 7 | 44 | |||||||||
| 1500×1200 | 1500×1200 | 1202 | 1314 | 1274 | 116 | 115 | 10 | 9 | 48 | |||||||||
| 1600×1000 | 1600×1000 | 1602 | 1002 | 1714 | 114 | 1674 | 1074 | 117 | 120 | 120 | 117 | 1440 | 840 | 12 | 7 | 36/36 | 18 | 46 |
| 1600×1200 | 1600×1200 | 1202 | 1314 | 1274 | 116 | 115 | 1044 | 9 | 50 | |||||||||
| 1600×1400 | 1600×1400 | 1402 | 1728 | 1528 | 1678 | 1478 | 139 | 140 | 134 | 136 | 1400 | 1206 | 10 | 38/38 | 20 | 46 | ||
| 1600×1600 | 1600×1600 | 1602 | 1728 | 1678 | 140 | 139 | 1400 | 10 | 48 | |||||||||
| 1800×900 | 1800×900 | 1802 | 902 | 1914 | 1014 | 1874 | 974 | 118 | 117 | 121 | 124 | 1638 | 726 | 14 | 6 | 36/36 | 22 | |
| 1800×1000 | 1800×1000 | 1002 | 1114 | 1074 | 120 | 117 | 840 | 7 | 50 | |||||||||
| 1800×1200 | 1800×1200 | 1202 | 1928 | 1328 | 1878 | 1278 | 135 | 134 | 142 | 142 | 1638 | 9914 | 12 | 46 | ||||
| 1800×1400 | 1800×1400 | 1402 | 528 | 1478 | 134 | 136 | 1026 | 9 | 50 | |||||||||
| 1800×1800 | 1800×1800 | 1802 | 1928 | 1878 | 135 | 1608 | 12 | 56 | ||||||||||
| 2000×1000 | 2000×1000 | 1004 | 1130 | 1080 | 135 | 135 | 810 | 6 | 46 |
專業制造、專業服務,駱盈為你創造更多價值 !
不斷提升服務質量,精益求精,“真誠的服務”是駱盈永恒的主題。駱盈嚴格按照 要求,質量嚴格把關,責任到人,確保生產、銷售、服務的健康運行。加強與用戶溝通,竭誠為廣大客戶提供優質產品,至善至美服務,特此駱盈做出如下承諾:
產品標準
產品嚴格按照中國 GB、HG 標準和美國 API 等標準設計、制造、驗收。密封面硬度達到規定要求,寬度超過標準。
售前服務
產品介紹,技術交流,非標產品設計,疑難解答。
售中服務
1、守信合同,保證及時供貨,隨時保持與客戶聯系
2、對特殊或復雜的產品,我廠安排技術人員對用戶進行產品使用、故障排除、調式及維修進行培訓和指導。
售后服務
1、駱盈產品質保期為自出廠起 12 個月,實行“三包”服務(包退、包換、包修)。
2、產品在使用中我廠定期組織技術、檢查人員進行訪問,征詢用戶對產品質量、使用狀況、改進意見等方面的反饋,以便進一步提高產品質量。
3、對用戶投訴產品質量問題,快速做出反映,售后服務人員在 24-36 小時(省外 48 小時)趕赴現場。
4、對售后服務,要求用戶填寫服務后的質量反饋表,并做出鑒定意見,共同提高駱盈的產品質量與服務質量。
1、客戶采購清單請傳真至 021-64207088 E-mail:luoying@luoyingsh.com,或來電咨詢 021-62212627。
2、收到客戶采購清單,為客戶提供產品型號選型與報價(價格清單)。
3、具體商定:交貨期、特殊要求等事宜。
訂貨須知
1、客戶對產品有特殊要求,須在訂貨合同中提供以下說明:
(1)結構長度
(2)連接形式
(3)公稱直徑、全通徑、縮徑、管道尺寸
(4)用介質及溫度、壓力范圍
(5)實驗、檢驗標準及其他要求本廠可根據客戶特殊要求配置定做和設計特殊產品。
2、本廠可根據客戶特殊要求配置定做和設計特殊產品。
3、如由客戶提供確定的產品類型和型號時,客戶應正確說明其型號的含義和要求,在供需雙方理解一致的條件下簽訂合同。
您也可以聯系在線客服